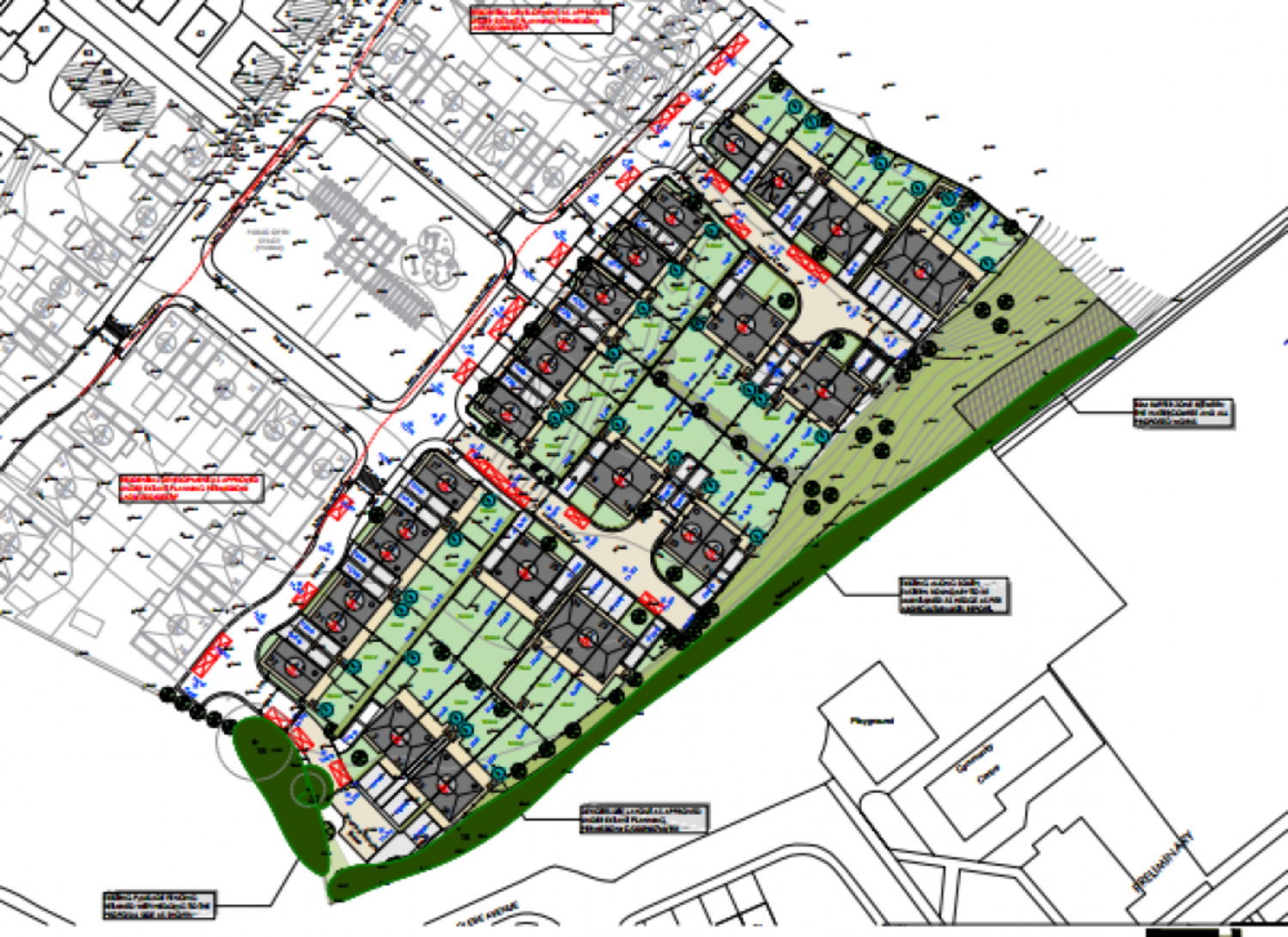
Lakeside

Construction of a mixed tenure housing development (social, affordable, private rent/ sale) with associated amenity space, of 36 units. 

The 36-unit scheme achieved planning permission in 2022 and is scheduled for construction in early 2026. 

There is a potential second phase adjacent to the development which is subject to planning approval and as a result the unit numbers, mix and design are subject to change.

Gallery